地域にひらいた泊まれるコワーキング/ZINEスタジオ 「宇野港編集室」をつくりたい(10/31まで!)

2023.10.11

EDIT LOCAL LABORATORY発、「地域にひらいた泊まれるコワーキング/ZINEスタジオ 「宇野港編集室」をつくりたい」が10/31日までクラウドファンディング中!

https://motion-gallery.net/projects/editlocal_room

 

瀬戸内に仕事場と文化観光・交流・学びの場をつくりたい

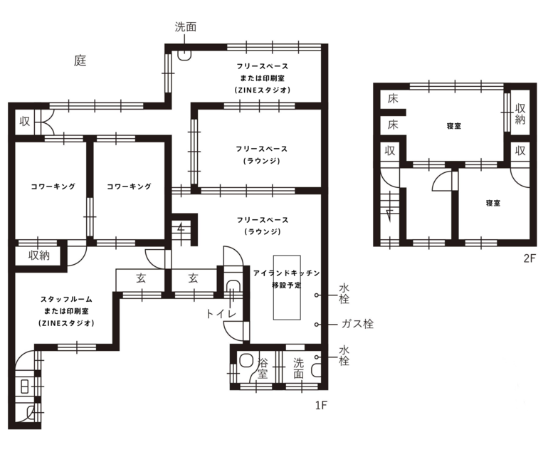
世界的に知られるようになった現代アートの島「直島」「豊島」、3年に一度開催される「瀬戸内国際芸術祭(瀬戸芸)」(次回は2025年)への入口となる岡山県玉野市・宇野港。週末や芸術祭の会期中にはたくさんの人が行き交うものの、静かに暮らす人も多いJR宇野駅と宇野港をつなぐ築港エリアに、まちのラウンジ(休憩所)・コワーキング(シェア型事務所)・ZINEスタジオ(小冊子印刷所)・宿泊機能等を備えた小規模多機能型拠点をつくります。

・インターネット環境下で長時間/数日間滞在して仕事が可能
・生活者や来街者がZINE制作等の文化的な活動を行ったり、情報収集できる
・瀬戸内観光客や生活者が電車/船の待ち時間等に、気軽に立ち寄り休憩できる
・大人だけでなく小中学生/高校生等が自宅や学校外の環境で学び、多世代と交流できる

そんな場所を目指しています。瀬戸内国際芸術祭や瀬戸内観光の盛り上がり等により、宇野駅・港湾付近には観光客向けの宿泊施設や生活者も利用できる飲食店等は増えていますが、上記のような場は限られており、テレワークやワーケーション環境を求める移住者・多拠点居住者・中長期滞在者の獲得や、生活者同志や生活者と来街者が交流する機会を潜在的に失っているのではないかと思います。

生活者や来街者が多様な交流をきっかけに地域の文化・観光資源等についてより深く知り、愛着を得るきっかけが限られており、「来街者には素通りされるまち」「仕事場や学校と家を往復するだけの生活者が多いまち」という構図があります。これを「また訪れたいまち」「文化が生まれる、楽しい出会いのあるまち」「暮らし働き続けたいまち」「市外・県外で就職してもいつか戻ってきたいまち」に変えていきたい。これは宇野だけでなく私が育った岡山市や瀬戸内の地域(の一部)に共通する課題でもあると思います。

木造長屋構造・2階建てをフル活用

拠点とする予定の建物は木造長屋構造で2階建、153.71 ㎡ / 46.5坪。一部のトタン屋根(大家さんが塗装し直してくださる予定)等が少々不安なものの、構造と瓦屋根はしっかりしていてまだまだ使えます。ラムネ工場や旅館、住居など様々な使われてきた歴史があるようです(調査中)。賃貸ですが改装はほぼ自由で現状復帰も不要。敷金・礼金がいらない代わりに床をつくったり、キッチンやエアコンを入れたりすることも必要でそれなりの資金が必要になりそうですが、DIYも多用しながら無理のないペースで少しづついい空間に育てていきたいと思っています。

リターンにはプロセス参加やお試し権、アートプロジェクト企画も

リターンには、これまでの本業・活動等から得られた知見・技術を活かせるもの。ELラボのネットワークを活かして提供できるもの。プロセスに参加していただけるもの。オープン後にやりたいことなどをたくさん用意してみました。リターンの実施自体に手間や予算もかかるものが多いのですが、支援いただいた皆さんの反応から、想定しているニーズと提供できるサービスのバランスも探っていきたいと思います。ぜひ興味をもっていただいたコースを選んでいただければと思います。
文=橋本誠

詳しくは→

EDIT LOCAL LABORATORY発、「地域にひらいた泊まれるコワーキング/ZINEスタジオ 「宇野港編集室」をつくりたい」が10/31日までクラウドファンディング中!

https://motion-gallery.net/projects/editlocal_room

ニュース一覧へ